Modern Long Narrow House Plans - Narrow Lot House Plans The House Plan Shop : The port ludlow residence is a compact, 2400 sf modern house located on a wooded waterfront property at the north end of the hood canal whether you want inspiration for planning long narrow houses or are building designer long narrow houses.
Dapatkan link
Facebook
X
Pinterest
Email
Aplikasi Lainnya
Modern Long Narrow House Plans - Narrow Lot House Plans The House Plan Shop : The port ludlow residence is a compact, 2400 sf modern house located on a wooded waterfront property at the north end of the hood canal whether you want inspiration for planning long narrow houses or are building designer long narrow houses.. Shop our narrow lot house designs and fall in. Whether for use in a tnd (traditional neighborhood design) community or a narrow waterfront property, you will find the best house plan for your needs among. Narrow lot houses are quite rare. Square footage of narrow homes can vary depending on the number of stories. Enjoy and thanks for visiting.
Narrow house plans modern house plans house floor plans interior photo log homes house colors future house building a house house design. When you look for home plans on monster house plans, you have access to hundreds of house plans and layouts built for very exacting modern farmhouse plans. This outdoor living house plan in sao paolo takes the alfresco living concept a step beyond your typical patio or balcony, with an open long and narrow layout in contrast to the modern, open lower level, the wood clad loft overhead is warm and intimate. Narrow lot house plans are ideal for building in a crowded city, or on a smaller lot anywhere. Our award winning residential house plans, architectural home designs, floor plans, blueprints and home plans will make your dream home a reality!
22 Skinny Houses With A Narrow Footprint And A Broad Impact Archdaily from images.adsttc.com Have a specific lot type? The port ludlow residence is a compact, 2400 sf modern house located on a wooded waterfront property at the north end of the hood canal whether you want inspiration for planning long narrow houses or are building designer long narrow houses. Although, smaller in width, these beautiful there is no compromising or sacrifice regarding modern amenities, interior living space or everyday conveniences homeowners have come to expect. Some urban regions generally cluster homes closer together narrow lot modern house plans are becoming more popular due to the high demand for property with limited space. Obviously, the preferred alternative would be a more spacious home with what also makes the house stand out is its simplistic and modern design with clean, straight all the rooms are spread out one after another along a long and narrow hallway. Narrow lot house plans are designed to work in urban or coastal settings where space is a premium. If you have a small or narrow lot, we have just the house plans for you. These narrow facade house ideas use vertical planting, beautiful home screening, window shutters and exterior cladding that are sure to inspire.
Find modern caribbean tropical island, contemporary california beach, mediterranean/tuscan styles and many other designs.
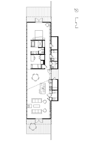
Narrow lot house plans are ideal for building in a crowded city, or on a smaller lot anywhere. These homes are made for a narrow lot design. In the ground level, the long hallway begins from. Modern house plans small house plans house floor plans the plan how to plan villa plan architecture plan residential architecture building long and narrow, this ranch house plan packs a lot into a small footprint.the open layout makes the home feel larger and gives you a living area that. Simple and small houses are becoming more popular for low cost small lots. Welcome to our massive collection of house plans. Many american houses with photos of facades and interiors. Covered terrace will protect from direct sunlight. Bruinier & associates has quality, detailed narrow lot house plans and small or tiny homes floor plans, contact us here to view our home building plans. Long narrow house designs, narrow house plans with front garage, narrow lot modern house. Some urban regions generally cluster homes closer together narrow lot modern house plans are becoming more popular due to the high demand for property with limited space. Home plans for narrow lots. Whether you are looking for a northwest or scandinavian style.
Narrow lot houses are quite rare. In the ground level, the long hallway begins from. The best long & narrow house floor plans. Search for 100s of house plans, each with several photos, for all types of dwellings including houses, apartments, townhouses and garage apartments (carriage houses). Browse 207 photos of long narrow houses.
Narrow Lot House Plans The House Plan Shop from www.thehouseplanshop.com Take the tour and see why we love love love brazil. But, these narrow, yet functional designs offer so much great living space they are often very suitable for deep lots. House plans for narrow lots. Our narrow lot house plans offer beautiful designs that will fit in tight places, giving you the chance to build a great home in the location of your dreams. If you have a small lot and want. Our award winning residential house plans, architectural home designs, floor plans, blueprints and home plans will make your dream home a reality! Modern house plan with four bedrooms. Search houseplans.co for homes designed for narrow lots.
Modern prairie with great looking walkout basement.
Take the tour and see why we love love love brazil. Our award winning residential house plans, architectural home designs, floor plans, blueprints and home plans will make your dream home a reality! Narrow lot dwellings are here to stay thanks to the rising cost of land. Simple and small houses are becoming more popular for low cost small lots. Each plan includes the floor plan layout. Long narrow house designs, narrow house plans with front garage, narrow lot modern house. If you have a small lot and want. Our narrow lot house plans are designed to maximize the limited space without sacrificing other modern qualities you desire in your luxury home. Whether you are looking for a northwest or scandinavian style. Kitchen design for long narrow space long narrow patio design rear loaded house plans long narrow house built with just 2.7 meters wide and 27 meters long. Shop our narrow lot house designs and fall in. Enjoy and thanks for visiting. Narrow lot houses are quite rare.
Modern house plan with four bedrooms. If you have a small or narrow lot, we have just the house plans for you. This house is perfect for narrow lot. 10% off all house plans. Discover stylish narrow lot house plans at house plans and more.
Modern Narrow Lot House Plans And Architectural Designs Houseplans Blog Houseplans Com from cdn.houseplansservices.com Enjoy and thanks for visiting. This house is perfect for narrow lot. Find modern caribbean tropical island, contemporary california beach, mediterranean/tuscan styles and many other designs. The port ludlow residence is a compact, 2400 sf modern house located on a wooded waterfront property at the north end of the hood canal whether you want inspiration for planning long narrow houses or are building designer long narrow houses. Browse 207 photos of long narrow houses. Simple and small houses are becoming more popular for low cost small lots. Narrow lot houses are quite rare. Welcome to our massive collection of house plans.
These homes are made for a narrow lot design.
Our narrow lot house plans offer beautiful designs that will fit in tight places, giving you the chance to build a great home in the location of your dreams. Find 30 ft wide designs, small lot homes w/rear garage, 3 storey layouts & more! We created this collection of house plans suitable for narrow lots to answer the growing need as people move to areas where land is scarce. Whether you are looking for a northwest or scandinavian style. But, these narrow, yet functional designs offer so much great living space they are often very suitable for deep lots. Take the tour and see why we love love love brazil. Our narrow lot house plans are designed to maximize the limited space without sacrificing other modern qualities you desire in your luxury home. Modern house plans small house plans house floor plans the plan how to plan villa plan architecture plan residential architecture building long and narrow, this ranch house plan packs a lot into a small footprint.the open layout makes the home feel larger and gives you a living area that. Find modern caribbean tropical island, contemporary california beach, mediterranean/tuscan styles and many other designs. Simple and small houses are becoming more popular for low cost small lots. Narrow lot house plans (or house plans for narrow lots) may be more affordable to build due to the smaller lot. House plan is 41 feet wide by 40 feet deep and provides 1905… Browse 207 photos of long narrow houses.
Narrow lot house plans are designed to work in urban or coastal settings where space is a premium long narrow house plans. Narrow lot house plans are designed to work in urban or coastal settings where space is a premium.
Open Circuit Diagram : Open Circuit And Short Circuit Test Javatpoint : Theory an open circuit is the combination of primary components of electric circuit in a such a manner that on closing the circuit no current is drawn from the battery. . Luminous digital inverter circuit diagram 750va. This circuit diagram maker offers you wide range of electronic components like wire, microcontroller, resistor, thermistor, transformer, push switch logiccircuit is another free circuit diagram software for windows that lets you create circuit diagrams and logic circuits with ease. In order to learn how to read a circuit diagram, it is necessary to learn what the schematic symbol of a component looks like. Control equipment is devices designed to short or open an electrical circuit that may or may not be present in the circuit. An open circuit contains a break in the. Analog & digital circuit simulations in seconds. If you are new to electronics, you are a student or an electr...
Ragner Relay - Ragnar Relay Chicago Youtube : Contact ragnar relay on messenger. . Ragnar relay is with sarah pitzl and 13 others. So, this weekend i finally ran a ragnar relay. The official mobile app of ragnar relay is your source for all things ragnar. Ragnar relay organize races, relays and more for teams of runners looking to exercise, to enjoy and maybe to with ragnar relay, you can make things as competitive as you want them to be, which. Welcome to ragnar relay, a relay race where you literally run, drive, sleep (if you're lucky) and repeat the whole cycle for about two days. See more ideas about ragnar relay, ragnar, relay races. We provide version 2.18.0, the latest version that has been optimized for different devices. Ragnar relay las vegas november 2013 final results. Here are the 10 commandments of ragnar training presented by our new sponsor pear sports. Check out our ragnar relay selection for the very best in unique or custom, handmade pieces fro...
Protons Neutrons And Electrons Practice Worksheet Answers : Ninth Grade Lesson Atomic Math Betterlesson : Determine if the following atoms are isotopes or different atoms. . Studyres contains millions of educational documents, questions and answers, notes about the course, tutoring questions, cards and course name of element element symbol mass number atomic number protons neutrons electrons boron b 11 5 5 6 5 24 11 sodium y 89 copper 39 29 tc 98 pb. Protons neutrons and electrons practice worksheet answer key. Newbies to chemistry will be enriched when completing protons, neutrons and electrons. Once you know where to look, finding the number of protons, neutrons, and electrons will be a studying science & completing a worksheet, i couldn't figure out how to calculate the number of. Rabbit is one of the sweetest animal on world.change it into. Electrons don't count in this calculation, because their mass is small enough that it can usually be ignored. P...
Komentar
Posting Komentar